4-х уровневый ТАУНХАУС в Москве - 330 кв.м.
СРОЧНАЯ ПРОДАЖА!
Начальная цена 24 900 000 руб.
Показы только 9 и 11 июля 2020 г.
+7 968 490-92-28 Михаил
+7 977 801 50 65 Елена
Запишитесь на просмотр прямо сейчас!
СОВРЕМЕННЫЙ и БЛАГОУСТРОЕННЫЙ
коттеджный поселок «РОЖДЕСТВЕНО»
12 минут пешком до метро
ВИДЕО-РОЛИК
КП «РОЖДЕСТВЕНО» входит в число наиболее привлекательных и престижных комплексов городского типа.
Коттеджи расположены таким образом, что из каждого окна открывается потрясающий вид на живописные окрестности.

ХАРАКТЕРИСТИКИ ТАУНХАУСА
1. Адрес: г. Москва, ул. Муравская, д. 7, кор. 1
2. Ближайшие станции метро: Пятницкое шоссе (Арбатско-Покровская линия)
3. Округ: Северо-Западный
4. Район: Митино
5. Серия дома: индивидуальный проект
6. Год постройки: 1997
7. Перекрытия: ж/б
8. Тип дома: кирпичный
9. Крыша: металочерепица
10. Окна: двойные стеклопакеты
11. Этажи: 1 / 1.5 / 2 / 2.5 / мансардный / цокольный
12. Санузлы: 4 (четыре)
13. Встроенный отапливаемый гараж с автоматическими воротами: 17.5 кв.м.

Жилой комплекс Рождествено стал символом современного достатка, и такое приобретение формирует определенный имидж владельца.
Высота потолка – 2.7 м.
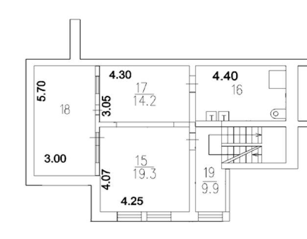
Прихожая - 12,9 кв. м.
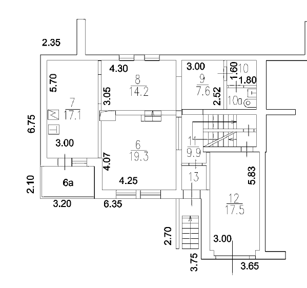
Гардеробная – 7.6 кв. м.
Гостиная – 19.3 кв. м.
Столовая – 14.2 кв. м.
Кухня – 17.1 кв. м.
С/узел гостевой– 4.6 кв. м.
Лестница – 9.9 кв. м.
Лоджия – 6.7 кв.м.
Высота потолка – 2.7 м.
ГОСТЕВАЯ ЗОНА (81,4 кв. м) – 1 этаж
КАБИНЕТ (12,6 кв. м) – 1.5 этаж
Высота потолка – 2.8 м.
Лестница – 9.9 кв. м.
Мастер-спальня – 33.5 кв. м.
Зимний сад – 17.1 кв.м.
С/узел приватный – 13.4 кв. м.
Высота потолка – 2.8 м.
ПРИВАТНАЯ ЗОНА (73.9 кв. м) - 2 этаж
ГОСТЕВАЯ СПАЛЬНЯ (12 кв. м) – 2.5 этаж
Высота потолка – 3.3 м.
Лестница – 9.9 кв. м.
Спальня – 38.2 кв. м.
С/узел приватный – 7.32 кв. м.
Высота потолка – 2.3 м.
Бассейн – 33.1 кв. м.
Шведская сауна – 10.1 кв. м.
Массажный кабинет/гладильная – 17.1 кв. м.
Туалет – 1.1 кв.м.
Бойлерная – 17.5 кв.м.
Настоящий погреб – 7 кв.м.
МАНСАРДНЫЙ ЭТАЖ (45.52 кв. м)
ЦОКОЛЬНЫЙ ЭТАЖ ( кв. м)
Грамотное зонирование пространства 1 этажа на кухню, столовую и гостиную, позволяет вам не покидать гостей во время неизбежных приятных хлопот на кухне и существенно расширяет пространство гостевой зоны.
ТЕХНИЧЕСКОЕ ОСНАЩЕНИЕ
Охранная система «Гольфстрим»
Система кондиционирования: сплит-системы «General Electric» во всех помещениях
Бойлер «ACV» (Бельгия)
Газовый котел «Buderus» (Германия)
Очистительная система воды «Ecowater» и «Atoll» (обезжилезивание и фильтрация)
В ближайшее время водоснабжение будет от Мосводоканал
Телевизоры «Toshiba», «Bang & Olufsen»
Для бассейна – насос с фильтром.
Напольное покрытие: паркет (дуб); лестница (молодой дуб); кафель (теплый пол)
Двери: дуб
Домофон с видеонаблюдением
Приточно-вытяжная вентиляция
Высокоскоростной интернет
Кабельное/спутниковое ТВ

Не смотря на близость к мегаполису, в поселке приятная тихая обстановка, чистый воздух, поблизости вековой лесной массив.
3D-тур по ТАУНХАУСУ
ФОТОГАЛЕРЕЯ
КУХНЯ-СТОЛОВАЯ
Кухонный гарнитур (индивидуальный проект из Италии), Итальянская столовая (буфет, обеденный стол с мраморной столешницей, 10 стульев), холодильник «LIEBHER», люстра из Муранского стекла (Италия), теплый пол
ГОСТИНАЯ
Дровяной камин "Chemeris GODIN" (Франция)
ПРИВАТНАЯ ЗОНА
Спальный гарнитур в стиле барокко (индивидуальный проект из Италии)
КАБИНЕТ, МАНСАРДНЫЙ ЭТАЖ и ГОСТЕВАЯ СПАЛЬНЯ
САНУЗЛЫ
Итальянская, немецкая «Axor» и японская сантехника, смесители "Oras Vienda" (Финляндия), «Hansygrohi» (Германия), стиральная машина «BOSH» (Германия), теплый пол.
КОРИДОР и ЦОКОЛЬНЫЙ ЭТАЖ
Шведская сауна «TYLO», душевая кабина с гидромассажем «JACUZI», парикмахерская мойка (с воротником), бассейн, массажное кресло, гладильная
ТЕРРИТОРИЯ ДОМА и ОКРЕСТНОСТИ
ИНФРАСТРУКТУРА КП «РОЖДЕСТВЕНО»
ИДЕАЛЬНАЯ ТРАНСПОРТНАЯ ДОСТУПНОСТЬ
Пешком:
На авто или на общественном транспорте:
м. Пятницкое шоссе (Арбатско-Покровская линия) – 12 минут
Освещенная асфальтированная дорога (700 м) от Контрольно-пропускного пункта КП «Рождествено» приведет Вас к главному городу Страны.
Пятницкое шоссе – 820 м
МКАД – 4.3 км
ТТК – 16 км
Немаловажную роль в расположении жилья играет и близкое прохождение трассы Ленинградского шоссе, ведущего к международному аэропорту «Шереметьево».
+7 968 490 92 28 Михаил
+7 977 801 50 65 Елена
Показы только 9 и 11 июля 2020 г.
Запишитесь на просмотр прямо сейчас!
Начальная цена 24 900 000 руб.
Приветствуем и вознаграждаем посредников.
Один взрослый собственник. Свободная продажа.
Содействие в получении специальных условий и преференций по ипотеке.
ФОТО АГЕНТОВ и ИНФОРМАЦИЯ о НИХ
  • Михаил Зинкин
    Руководитель отдела Скоростных продаж агентства недвижимости "На Петровке"
    Подполковник запаса, имеет диплом с отличием.
    В 2016 году прошёл обучение по авторской методике Александра Санкина "Аукционный метод продажи недвижимости".
    Имеет аттестат Российской гильдии риелторов, квалификация "Специалист по недвижимости - брокер".
    Специализация: продажа жилой, загородной и коммерческой недвижимости на вторичном рынке.
    Имеет сертификат "Гранд-мастер аукционных продаж недвижимости".
    Место работы: АН «На Петровке»

    Моб. телефон: +7 968 490-92-28
  • Елена Баликоева
    Персональный брокер. Маркетолог.
    Специалист по скоростным продажам недвижимости.
    Образование - высшее.
    Прошла обучение по авторской методике Александра Санкина "Скоростной метод продажи недвижимости".
    Основная миссия - помогаю своим Клиентам реализовать их планы в кратчайший срок. Сопровождаю обе стороны на всех этапах осуществления сделки.
    Философия моей жизни - Жить в моменте «здесь и сейчас». Постоянное развитие и движение вперёд.
    Опыт работы 17 лет.
    Место работы: АН «На Петровке»

    Моб. телефон: +7 977-801-50-65
Оставьте Ваш телефон, и мы свяжемся с Вами!
Нажимая на кнопку, вы даете согласие на обработку персональных данных и соглашаетесь c политикой конфиденциальности
+79684909228
Нажимая на кнопку, вы даете согласие на обработку персональных данных и соглашаетесь c политикой конфиденциальности
Made on
Tilda