5-ти уровневый ТАУНХАУС в Москве – 280 кв.м.
СРОЧНАЯ ПРОДАЖА!
+7 968 490-92-28 Михаил
+7 977 801 50 65 Елена
Запишитесь на просмотр прямо сейчас!
СОВРЕМЕННЫЙ и БЛАГОУСТРОЕННЫЙ
коттеджный поселок «РОЖДЕСТВЕНО»
10 минут пешком до метро
Цена 30 000 000
или лучшее предложение
Показы только 11 и 13 ноября 2021 г.
Contact us
WhatsApp
Phone
ВИДЕО-РОЛИК
Находясь вблизи от мегаполиса, поселок «Рождествено» может похвастать чистым воздухом и великолепной экологической обстановкой. Он расположился всего в нескольких минутах ходьбы от станции метро «Пятницкое шоссе» и одновременно от живописного лесного массива, возраст которого исчисляется веками.
ХАРАКТЕРИСТИКИ ТАУНХАУСА
1. Адрес: г. Москва ул. Муравская, д. 3
2. Ближайшие станции метро: Пятницкое шоссе (Арбатско-Покровская линия)
3. Округ: Северо-Западный
4. Район: Митино
5. Серия дома: индивидуальный проект
6. Год постройки: 2006
7. Перекрытия: ж/б
8. Тип дома: кирпичный
9. Крыша: металочерепица
10. Окна: двойные стеклопакеты
11. Этажи: 1 / 2 / 3 / мансардный / цокольный
12. Санузлы: 4 (четыре)
13. Машино-место: на 2-3 машины

Чтобы быть одновременно поближе к городу и подальше от давления мегаполиса, купите таунхаус в поселке «Рождествено» в Митино, который напоминает ухоженный английский городок.
Высота потолка – 3.05 м
Прихожая – 3.94 кв. м.
Гардеробная – 7.6 кв. м.
Гостиная – 39.1 кв. м.
Кухня – 11.9 кв. м.
Туалет гостевой – 2.7 кв. м.

Кухонный гарнитур со встроенной техникой (индивидуальный проект из Италии), холодильники «BOSCH», «SIЕMENS», теплый пол на кухне и в с/у, не стандартные двери 2.7м и 2.9м. Настенная плитка в с/у с имитацией «под кожу».
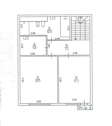
ГОСТЕВАЯ ЗОНА (64.9 кв. м) – 1 этаж
Высота потолка – 3.05 м
Холл – 6.5 кв.м
Мастер-спальня – 23.7 кв. м
Гардеробная женская – 7.6 кв.м
Гардеробная мужская – 7.6 кв.м
С/узел приватный – 12.7 кв. м
Гладильная - 2.6 кв.м
Балкон – 0.9 кв.м

Джакузи, смесители «DORNBRACHT», унитаз-биде «GEBERIT» Швейцария. Напольная и настенная плитка в с/у с имитацией «под кожу». В гардеробных и частично в спальне – кожаная плитка.
ПРИВАТНАЯ ЗОНА (61.6 кв. м) - 2 этаж
Высота потолка – 3.05 м
Холл – 7.3 кв.м
Спальня детская – 17.3 кв.м
Спальня детская – 20.5 кв.м
С/узел совместный с джакузи – 12 кв.м
Постирочная – 5.8 кв.м
Балкон – 0.9 кв.м

Сантехника «IL Bagno Alessi», ванная, душевая кабина, смесители «IL Bagno Alessi» и «GROHE», Стиральная машина «SAMSUNG», полотенцесушители электрические.
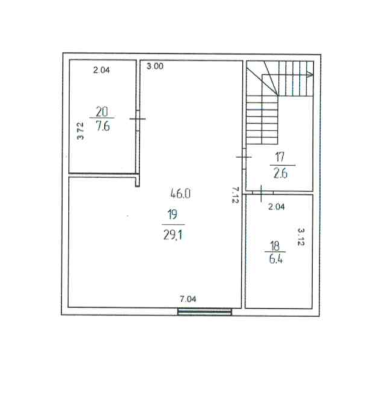
ПРИВАТНАЯ ЗОНА ДЕТСКАЯ (63.8 кв. м) - 3 этаж
Высота потолка – 4.43 м
Холл – 2.6 кв. м
Лаунж-зона – 29.1 кв. м
Помещение – 6.4 кв. м
С/узел совместный – 7.6 кв.м

Душевая кабина, сантехника «DURAVIT» , унитаз-биде «Geberit», смеситель «GROHE».
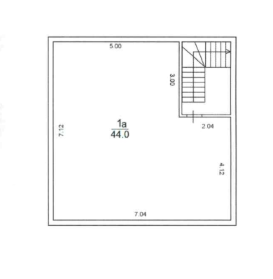
Высота потолка – 3.05 м
Кинотеатр – 44 кв. м


ЛАУНЖ-ЗОНА / БИБЛИОТЕКА (45.7 кв. м) – мансардный этаж
ДОМАШНИЙ КИНОТЕАТР ( 44 кв. м) – цокольный этаж
Экологическая чистота и близость к природе здесь сочетается с развитой инфраструктурой. Находясь в черте Москвы, поселок «Рождествено» граничит с лесным массивом. Неподалеку протекает Москва-река. Такое уникальное сочетание позволяет с комфортом проживать в природном окружении и работать в столице. До МКАДа отсюда всего 4 километра.
ТЕХНИЧЕСКОЕ ОСНАЩЕНИЕ
Охранная система «Гольфстрим»
Система кондиционирования: сплит-системы «Mitsubishi» во всех помещениях.
Телевизоры Samsung
Холодильники: «BOSCH», «SIЕMENS»
Кофемашина «Siemens»
Варочная плита индукционная «Siemens»
Духовка «Siemens»
Фильтр для воды «ГЕЙЗЕР»
Стиральная машина «SAMSUNG»
Сейф встроенный электрический
Напольное покрытие: паркет (дуб); кафель (теплый пол)
Сантехника: все унитазы-биде «GEBERIT» Швейцария.
Смесители «HANSGROHE», «DORNBRACHT», «IL Bagno Alessi»
Полотенцесушители: электрические
Лестница – дуб, двери TRE-Piu, Италия.
Домофон с видеонаблюдением
Приточно-вытяжная вентиляция
Высокоскоростной интернет от МГТС

Плитка клинкер на парковочных местах (Германия)

3D-тур по ТАУНХАУСУ
Таунхаусы в КП «Рождествено» отвечают всем современным тенденциям архитектурной моды, имеют четкую зональность.
ФОТОГАЛЕРЕЯ
ГОСТЕВАЯ ЗОНА (64.9 кв.м) – 1 этаж
ПРИВАТНАЯ ЗОНА (61.6 кв.м) - 2 этаж
ПРИВАТНАЯ ЗОНА ДЕТСКАЯ (63.8 кв.м) - 3 этаж
ЛАУНЖ-ЗОНА / БИБЛИОТЕКА (45.7 кв.м) – мансардный этаж
ДОМАШНИЙ КИНОТЕАТР ( 44 кв.м) – цокольный этаж
КОТЕЛЬНАЯ
ТЕРРИТОРИЯ ДОМА и ОКРЕСТНОСТИ
ИНФРАСТРУКТУРА КП «РОЖДЕСТВЕНО»
ИДЕАЛЬНАЯ ТРАНСПОРТНАЯ ДОСТУПНОСТЬ
Пешком:
На авто или на общественном транспорте:
м. Пятницкое шоссе (Арбатско-Покровская линия) – 10 минут
Освещенная асфальтированная дорога (700 м) от КП «Рождествено» приведет Вас к главному городу Страны.
Пятницкое шоссе – 820 м
МКАД – 4.3 км
ТТК – 16 км
Немаловажную роль в расположении жилья играет и близкое прохождение трассы Ленинградского шоссе, ведущего к международному аэропорту «Шереметьево».
5-ти уровневый ТАУНХАУС в Москве – 280 кв.м.
СРОЧНАЯ ПРОДАЖА!
+7 968 490-92-28 Михаил
+7 977 801 50 65 Елена
Запишитесь на просмотр прямо сейчас!
СОВРЕМЕННЫЙ и БЛАГОУСТРОЕННЫЙ
коттеджный поселок «РОЖДЕСТВЕНО»
10 минут пешком до метро
Цена 30 000 000
или лучшее предложение
Показы только 11 и 13 ноября 2021 г.
Приветствуем и вознаграждаем посредников.
Один взрослый собственник. Свободная продажа.
Содействие в получении специальных условий и преференций по ипотеке.
ФОТО АГЕНТОВ и ИНФОРМАЦИЯ о НИХ
  • Михаил Зинкин
    Руководитель отдела Скоростных продаж агентства недвижимости "На Петровке"
    Подполковник запаса, имеет диплом с отличием.
    В 2016 году прошёл обучение по авторской методике Александра Санкина "Аукционный метод продажи недвижимости".
    Имеет аттестат Российской гильдии риелторов, квалификация "Специалист по недвижимости - брокер".
    Специализация: продажа жилой, загородной и коммерческой недвижимости на вторичном рынке.
    Имеет сертификат "Гранд-мастер аукционных продаж недвижимости".
    Место работы: АН «На Петровке»

    Моб. телефон: +7 968 490-92-28
  • Елена Баликоева
    Персональный брокер. Маркетолог.
    Специалист по скоростным продажам недвижимости.
    Образование - высшее.
    Прошла обучение по авторской методике Александра Санкина "Скоростной метод продажи недвижимости".
    Основная миссия - помогаю своим Клиентам реализовать их планы в кратчайший срок. Сопровождаю обе стороны на всех этапах осуществления сделки.
    Философия моей жизни - Жить в моменте «здесь и сейчас». Постоянное развитие и движение вперёд.
    Опыт работы маркетологом 17 лет, в недвижимости 4 года.
    Место работы: АН «На Петровке»

    Моб. телефон: +7 977-801-50-65
Made on
Tilda