Монолитный 4-х уровневый дом 1511 кв.м с ПАНОРАМНЫМ ОСТЕКЛЕНИЕМ у большой воды
Цена 30 000 000 руб.
12 км от МКАД по Дмитровскому шоссе
600 м от берега Клязьминского водохранилища
МО д. Новосельцево
+7 926 428 12 68 Александр
+7 977 801 50 65 Елена
Запишитесь на просмотр прямо сейчас!
СРОЧНАЯ ПРОДАЖА!
Деревня Новосельцево расположена в 12 км от МКАД по Дмитровскому шоссе, сразу после пересечения с каналом имени Москвы на дальнем берегу Клязьминского водохранилища.
Новосельцево – это престижный населенный пункт, с автоматическими воротами и асфальтовыми дорогами, со своим прудом и прямым выходом на береговую линию.
В этой локации расположены известные яхт клубы, вейк- станции, причалы для яхт и катеров, а также лучшие зоны отдыха и загородные клубы на берегу «большой воды».

Жить и отдыхать можно и нужно красиво! В шаговой доступности от Вашего нового дома будут расположены
причал, где вы можете ставить вашу яхту, катер или гидроцикл, вейк-станция для занятий водными видами спорта, благоустроенная пляжная зона, а также клуб охотников и рыболовов.
ВИДЕО-ПРЕЗЕНТАЦИЯ
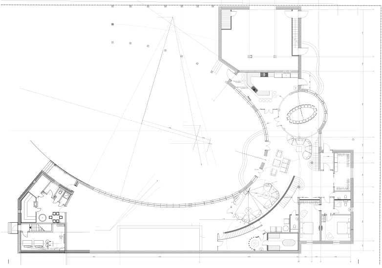
Эксклюзивный, и в тоже время надежный и солидный 4-х уровневый дом, расположен на участке 24 сотки, и построен по индивидуальному проекту, единственному в своем роде! Вы можете быть уверены, что второго такого нет ни у кого!
ХАРАКТЕРИСТИКИ ОБЪЕКТА
  1. Адрес: Московская область, Мытищинский р-н, д. Новосельцево, ул. Западная, д. 10
  2. Площадь дома: 1511 кв.м. (кадастровый номер 50:42:0000000:21035)
  3. Площадь ЗУ: 24 сотки (кадастровые номера 50:12:0060204:96, 50:12:0060204:167)
  4. Категория земель: Земли населенных пунктов
  5. Виды разрешенного использования: Для ведения личного подсобного хозяйства
  6. Год постройки: 2007
  7. Перекрытия: армированный бетон на гранитном щебне М-350
  8. Стены: армированный бетон на гранитном щебне М-350
  9. Фундамент: армированный бетон на гранитном щебне М-400
  10. Крыша: утепленная основа под любое покрытие
  11. Окна: панорамное остекление, тройные стеклопакеты с ламинацией и раскладкой
  12. Этажи: цокольный / 1 / 2 / мансардный
  13. Высота потолков: индивидуальная
  14. Гараж: на 3 а/м

СОСТАВ ОБЪЕКТА
Цокольный уровень


Подсобные помещения
Топочная
Бильярдная
Бункер/Убежище
1-й уровень

Подсобные помещения
Гараж
Кухня
Столовая
Гостиная
Прихожая
Гардеробная
2 жилых комнаты
Сауна
Душевая
Зимний сад
Бассейн
Тренажерный зал
3 с\у
2-й уровень

Подсобные помещения
5 жилых комнат
2 холла
2 балкона
3 с/у
Мансардный уровень

Кабинет
Библиотека
Жилая комната
Гардеробная
КОММУНИКАЦИИ
Водоснабжение: глубинная скважина

Отопление: магистральный газ, труба увеличенной пропускной способности

Канализация: септик

Электроснабжение: 15 кВт (с возможностью увеличения)
ФОТОГАЛЕРЕЯ
Фото дома и участка
Фото окружения
ИДЕАЛЬНАЯ ТРАНСПОРТНАЯ ДОСТУПНОСТЬ
От МКАД (Москва) по Дмитровскому шоссе – 12 км

До ж/д станции Лобня (D1) – 5 км

До станции метро Физтех – 11 км

Монолитный 4-х уровневый дом 1511 кв.м с ПАНОРАМНЫМ ОСТЕКЛЕНИЕМ у большой воды
Цена 30 000 000 руб.
12 км от МКАД по Дмитровскому шоссе
600 м от берега Клязьминского водохранилища
МО д. Новосельцево
+7 926 428 12 68 Александр
+7 977 801 50 65 Елена
Запишитесь на просмотр прямо сейчас!
СРОЧНАЯ ПРОДАЖА!
Мы приветствуем и вознаграждаем посредников!
Полная стоимость в ДКП. Свободная продажа. Один собственник. Без обременений и ограничений.
Мы оказываем содействие в получении специальных условий и преференций по ипотеке.
ФОТО АГЕНТОВ и ИНФОРМАЦИЯ о НИХ
  • Беляев Александр
    Специалист по скоростным продажам недвижимости.
    Образование высшее техническое, степень МВА.
    В 2018 году прошел обучение по авторской методике и технологии продаж недвижимости Mike Ferry.
    В 2019 году прошел обучение по авторской методике аукционных продаж недвижимости Александра Санкина.
    Имеет аттестат гильдии риэлторов Москвы, квалификация "Специалист по недвижимости - агент".
    Имеет удостоверение о повышении квалификации по специальности "Брокер и юрист по недвижимости" Московского Международного Университета № 772410636604.
    Имеет сертификат "Мастер аукционных продаж недвижимости".
    Специализация: продажа жилой и коммерческой недвижимости на вторичном рынке.

    Место работы: АН "На Петровке"
    Моб. телефон: +7 926-428-12-68
  • Баликоева Елена
    Мастер скоростных продаж недвижимости. Маркетолог
    Образование - высшее.
    Сертифицированный специалист гильдии риэлторов Москвы (Сертификат № РОСС RU РГР ОС 77 АН 189).
    В 2018 году прошла обучение по авторской методике аукционных продаж недвижимости Александра Санкина.
    Удостоверение о повышении квалификации по специальности "Брокер и юрист по недвижимости" Московского Международного Университета № 772410636605.
    Специализация: продажа жилой и коммерческой недвижимости на вторичном рынке.
    В 2020 году получила сертификат «Мастер аукционных продаж».
    Опыт работы маркетологом 17 лет, в недвижимости 4 года.

    Место работы: АН «На Петровке»
    Моб. телефон: +7 977-801-50-65
Made on
Tilda